登录
注册
新房
二手房
透明房产网
首页
>
新盘
>
高新南区
>
华商捌号大厦1期
>
搜索
华商捌号大厦1期
住宅户型
现场公示
楼盘主页
项目介绍
户 型
一房一价
地图交通
楼盘相册
最新动态
全部(
6
)
商业(
6
)
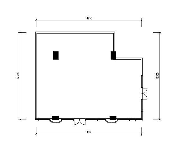
A4
建筑面积:
约182.53平米
实得面积:
约458.47平米
物业费:待定
物管公司:
成都华商广场商业管理有限公司...
装修情况:毛坯
A4户型解析
底跃
1栋
猜你喜欢
101.77平米
4775.76平米
102.61平米
833.83平米
261.18平米
收藏
加入对比
询底价